返回

企业动态

时间轴上的装修

发布时间:2019-03-07 89 0



序言



轰轰烈烈的大都市,时间,就像整齐的A4纸,无关四季。但在装修的日子里,你会发现,时间与空间交织的魔幻现实主义。

 

小屋,在设计师和项目经理的推动下,在工人的手中,以一天一个样的进度,飞速刷新着。。。


你可以把这当成小说,也可以当成了解装修的纪录片,总之,通过本专题,我们是想让你看到装修不同阶段里的人和事,同时感受房屋不同层次的变化,带给我们平凡人的喜悦和惊讶。


 时间轴上的装修,让我们触摸时间,感受改变。




第一期    

设计师家的装修(1)



文:Freya

编辑:阿旭

 


3月1日。开工日。

 


8:18 赶场


当很多人还在睡梦中,娟便忙开了。7点不到,她便赶到了业主家,她在这儿只有一个小时的停留时间。今天共有四家开工。第二家便是她自己家。

 

刚到楼下,就看见老搭档吴大兵和其他工人、摄影师,都已经在等她了,显然,他们已经等了有一会,地上已经散落几根烟头。

 

进了家门,移过那张特意留下来的老桌子,拖到正堂,摆上准备好的供果、饮料,伴随着开工大吉的道贺和礼花“嘭”的缤纷散落,娟家的装修在欢声笑语里拉开了序幕!



工地,丑陋,是的,没什么好看,但是我们的思维一定能超越它现在的平凡,想得到它接下来将在这些人手中发生的巨大变化。





一切未来,指日可盼。







 

图纸已经标好要拆的位置。

 

娟给工人交代好所有的细节后,拆旧和敲墙并举。

 





8:30 意外


工人用电钻打她指到的位置,迟疑了一下,又钻了钻,抬起头对她严肃的说:“不行啊,这是承重墙,混凝土哩。。。”

 

虽是一个小点,但是,娟五雷轰顶,她感到了一种可怕的危机,刚刚喜悦的心一下子紧张起来。

 

作为设计师,她知道遇到了暗礁,有可能几个月精心准备的图纸,要全部推翻。世事难尽如人意啊!

 

迅速确定好尺寸,立刻展开揉皱了的平面图,趴在老桌子上就画起来。

 


你也许会对她产生怀疑,怎么自己家的房子都搞不清楚?!哎,是啊,她怎么会这么大意呢?实际上,她之前已经跑了物业,并且一再确认,伢叔还很自信的说:“放心,这个房子都是砖头的,里面的墙都能动。。。”

 

一般情况,现在新房物业处都有承重结构图,墙体标的清楚,信息不会错。二手房就麻烦点,设计师用承重墙测量仪确认是否为承重墙,能不能敲。只是太忙了,想着问下物业省点事。

 



9:00 领悟

 

现在,娟已经改好了,动线发生大变化,不禁叫人眼前一亮。

 

房子是死的,人的脑袋是活的,设计师的很多创意都是被这样逼出来的。

 

条件的不同,方案之间真的是差之分毫谬之千里!装修设计就是在不断地修缮调整中寻找更好的效果。

 

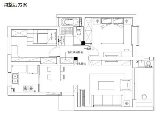
如果你有兴趣,可以细看下这前后调整过的设计图:

为了方便各位看懂,简单说明下:

主要拆除有5个地方,这些地方的改动主要是为了扩大空间。


例如标红1处,卫生间三分离的改造,可谓亮点。

BEFORE                                       AFTER


标红2处,变大后的厨房可以容纳冰箱和U型橱柜

BEFORE                                       AFTER


当然,有趣的还是标红5处,对照调整前后图纸,可见这一因承重墙而改变的设计,却留出了鱼缸的位置,不仅改善了卫生间正对大门的风水禁忌,还让餐厅也变大了。

BEFORE                                       AFTER




13:00 新情况

 

刚忙完第四家开工,娟倒在车里喘口气。

 

微信群里,项目经理发来:“楼下阿姨来投诉,说墙敲得太多了。”

 

晕倒,娟又一次感到心塞,自家房子还做不了主了?更让她郁闷的是,她没拆多少啊!



 

13:30 力挽狂澜


火速赶往现场。

 

门口就听见阿姨和物业的声音,解释,掏出自己象征权威的工牌,专业的解释。

 

然并卵。两座大山并不打算为她高大上的理论所撼动。


怎么办?设计师的才华和脸面,怎么可以被无机的舆论所困?

 

她脑子一机灵,终于她笑着送走了这两位不速之客。


兵来将挡,水来土掩。不怕,凡是麻烦,都是云烟。


无论如何,装修不能停,工期必须继续。

 

 

本期完,预知下期会有怎样的故事和变化,且看下回分解。


 

本期互动:猜猜设计师灵机一动,做了什么?



 (点击即可查看装修后业主们的采访集锦)



首页

客服

收藏夹

加入收藏